Basalt Showroom  ·  By Appointment Only  ·  970-948-2368  ·  info@lightfoot.net

From Plan to Reality

Where Design Becomes Built Work

Every project begins with disciplined thinking. Drawings are not presentation tools, they are coordination tools. They align cabinetry, appliances, and structure before anything is built, ensuring what is designed is what gets delivered.

Drawings Are Only Valuable
If They Build Correctly

At The Lightfoot Group, CAD is not a formality. It is the working language between design, cabinetry, and construction.

Across both Village Run and Ridge Snowmass, every plan view and elevation is developed to resolve complexity early: appliance placement, island relationships, circulation, storage, and the realities of structure.

The goal is simple: what is drawn is what gets built.

Layout

Cabinet placement, island positioning, and circulation paths.

Execution

Elevations, alignments, appliance integration, and proportions.

Coordination

The bridge between design intent, fabrication, and construction reality.

The Entire Kitchen,
Resolved Before Construction

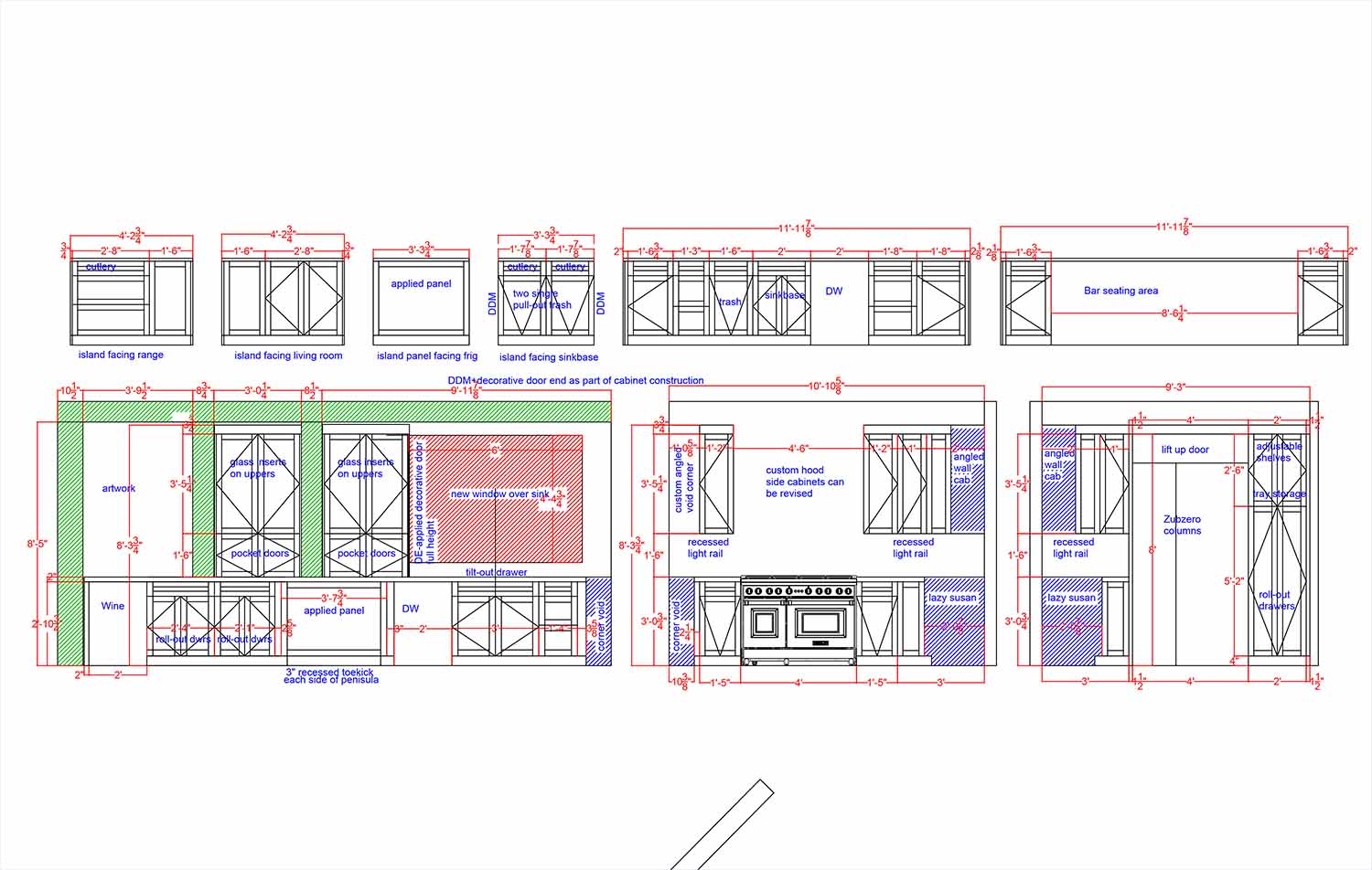
The plan view establishes the logic of the space.

In Village Run, the layout organizes a central island, perimeter cabinetry, and clear circulation within a clean footprint. In Ridge Snowmass, angled geometry and multiple adjoining zones require more deliberate coordination.

Every red dimension reflects a decision made before construction begins, reducing ambiguity in the field and aligning all trades around a single plan.

Village Run kitchen plan view
Ridge Snowmass kitchen plan view

Village Run — Plan view, island and perimeter cabinetry.

Ridge Snowmass — Plan view, angled geometry and multiple zones.

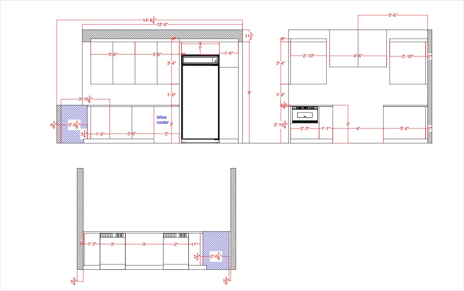
Village Run kitchen elevations
Ridge Snowmass kitchen elevations

Village Run — Appliance integration, storage, and vertical alignment.

Ridge Snowmass — Cabinetry, hood composition, and structure.

What Gets Built,
Line by Line

If the plan view defines the system, elevations define the execution.

These drawings resolve cabinet heights, alignments, appliance integration, and the relationship between cabinetry, stone, and surrounding architecture.

They guide fabrication so the work arrives on site ready to install, not reinterpret.

This kitchen was built directly from the plan and elevation drawings shown above.

Village Run
Built Exactly as Intended

In Village Run, the drawings translate into a kitchen that feels welcoming, composed, and intuitive to use. The central island anchors the room while cabinetry, seating, and circulation work together without strain.

Village Run finished kitchen
Village Run finished kitchen 2
Village Run finished kitchen 3
Village Run completed kitchen view
Village Run kitchen and entertainment area
Village Run alternate kitchen angle

Village Run — island, cabinetry, and integrated living areas built exactly as drawn.

Structure, Material, and Cabinetry Working as One

Ridge Snowmass brings another level of complexity. Timber structure, angled geometry, and multiple adjacent zones all had to be resolved through drawings before the room could feel this effortless in person.

Kitchen Before Re-design

Kitchen Before Re-design

Ridge Snowmass wide kitchen and dining view
Ridge Snowmass island and seating view
Ridge Snowmass range wall

Ridge Snowmass — structure, material, and cabinetry resolved through drawing and built as one.

Coordination Is
The Difference

Strong design is only part of the equation. Execution requires coordination across cabinetry, construction, and materials.

By resolving decisions early, we reduce friction during construction and deliver spaces that feel intentional, not assembled.

From concept to completion, every decision is made with the final result in mind.

Fewer Field Changes

More decisions resolved before installation begins.

Cleaner Installations

Better alignment between fabrication, site conditions, and finish materials.

A More Resolved Result

Spaces that feel effortless because they were not left to chance.

Share Your Plans,
We’ll Help Build the Path Forward

Whether you are beginning with concept sketches, architectural drawings, or an existing room ready for rethinking, The Lightfoot Group can help translate design intent into build-ready clarity.